Чи вдасться у Ковелі реалізувати проєкт щодо реконструкції парку культури і відпочинку імені Лесі Українки
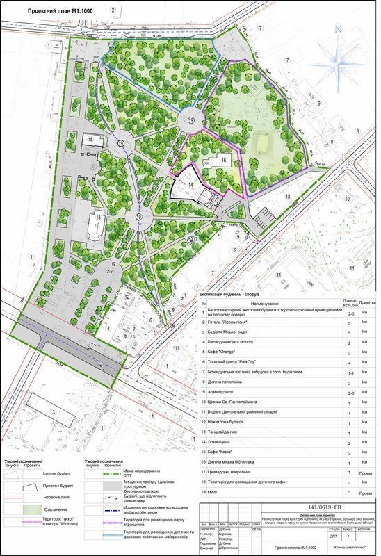
Досить “гарячими” видались громадські слухання з обговорення проєкту «Детального плану території реконструкції парку культури і відпочинку ім. Лесі Українки, бульвару Лесі Українки, площі зі сторони парку та вулиці Незалежності”.
Окремі ковельчани, які прийшли на засідання, одразу були налаштовані проти змін в центральній частині міста. “Не на часі”, “не такі ми багаті, щоб займатись парком”, “для чого” - ці репліки час від часу можна було чути в залі.

Презентувала проєкт архітектор приватного підприємства «Ковелькомунпроект» Марта Добровольська. Вона ознайомила із напрацюваннями щодо майбутніх масштабних змін, висловила своє бачення, аргументуючи та пояснююючи, що ж у результаті отримають ковельчани та гості міста.

Найбільше невдоволення у присутніх викликало — перенесення пам’ятника Лесі Українки до центрального входу у парк, влаштування нового фонтану та демонтаж музею.
Разом з тим, і проєктант і головний архітектор Людмила Мурай роз’яснили, що такі зміни пропонуються на підставі проведених обстежень об’єктів і території парку.

Існуючі об’єкти благоустрою на території парку давно вимагають оновлення. Це, зокрема, мощення доріжок, паркове освітлення та лавки. Проєктом збережено існуючу систему пішохідних зв’язків і передбачено їх заміну з доповненням декоративними скульптурами на тему творів Лесі Українки та організацією зон відпочинку з озелененням на перетинах основних пішохідних осей. Також передбачено велодоріжку.
Говорили і про те, що площа зелених насаджень суттєво не зміниться. Після обстеження знесуть старі та хворі дерева, а на їх місці буде посаджено нові зелені насадження різної ярусності. Чимало приємних архітектурних рішень чекає на малечу, молодь.

Щодо пропозиції демонтажу будівлі музею, то таке проєктне рішення запропоновано у зв’язку з технічним станом існуючого приміщення, яке потребує повної перебудови, для створення належних умов для його функціонування та роботи персоналу. Музей запропоновано перенести у будівлю колишнього РАЦСу, яка є пам’яткою архітектури місцевого значення і перебуває у комунальній власності. Ця споруда має значно більшу площу і після ремонту найкраще підійде для музею.
Фонтан також знаходиться в аварійному стані і потребує великих капіталовкладень для ремонту. На сьогодні є інвестор, який готовий допомогти з будівництвом нового, більш сучасного — пішохідного. За проєктом він займе місце у центрі площі.
Перенести пам’ятник Лесі Українці заплановано до головного входу в парк та зумовлено необхідністю раціональної організації простору зі сторони вулиці Незалежності. Від неї передбачено влаштування алеї до входу в парк. Її домінантою і стане пам’ятник нашій славетній землячці.
Також пропонується організувати площу для проведення міських заходів. У її північній частині буде висаджено ялину, біля якої проводитимуться масові розваги під час новорічних та різдвяних свят.

Щодо вартості усіх робіт, то, за словами Людмили Мурай, це дійсно великі кошти, але реконструкція буде проводитись поетапно і місту під силу спрямовувати щороку певну суму, аби все-таки осучаснити центральний парк міста, зробити його багатофункціональним і справжньою зеленою перлиною Ковеля.
Втім, жодні аргументи, докази не переконали частину присутніх. І понад 20 чоловік, які прийшли на слухання, проголосували за те, щоб відхилити цей проєкт.
Були в залі й ті, які не голосували за це рішення, але й не наважились сперечатись з противниками змін.
Проєкт буде доопрацьовуватись. Обговорення триває. Запрошуємо усіх небайдужих долучатись. Свої пропозиції можна подати у відділ містобудування та архітектури (вул. Незалежності, 73, каб. 106).
З проєктом знайомтесь за посиланням
http://kovelrada.gov.ua/userfiles/file/department/architecture/dpt/dpt_rekonstruktsia_parku.zip
Читайте також:
11 вересня 2019